
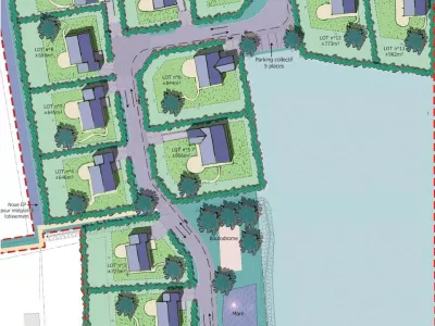
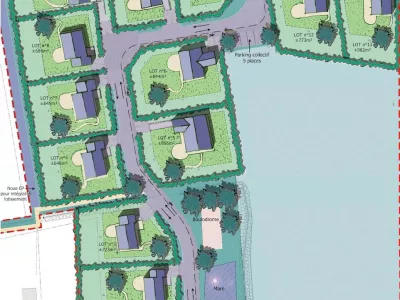
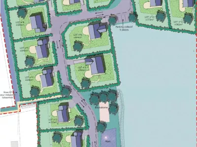
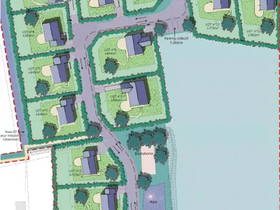
14 terrains à bâtir à MANNEVILLE-LA-PIPARD
La Clé des Champs
Aux portes de PONT L'EVEQUE, dans un environnement calme et naturel, nous vous proposons 14 beaux terrains à bâtir de 645 à 982 m2 *.
Ces terrains sont bien exposés, libres de constructeurs et seront équipés de tous les branchements nécessaires (électricité, téléphone, eau potable) vous permettant de réaliser votre projet de construction d'une maison neuve aux normes RE 2020 dans les meilleures conditions.
MANNEVILLE-LA-PIPARD est une petite commune de Normandie qui prend place dans le département du Calvados au coeur du Pays d'Auge, à proximité de la Côte Fleurie et de l'autoroute de Normandie.
Zone Géographique :
3,4 Km 3 Mn accès autoroute A13
4,4 km 5 Mn de Pont l'Évêque
12,5 km 12 Mn de Lisieux
16 km 18 Mn du centre de Deauville
16,5 km 16 Mn de Beuzeville
19,5 km 20 Mn de Honfleur
44,5 km 28 Mn de Mondeville
Documents à télécharger

La Clé des Champs

La Clé des Champs




