
24 terrains à bâtir OUILLY LE VICOMTE (14)
Le Pont d'Ouilly
Sur le charmant village d'Ouilly le Vicomte, nous vous proposons 24 terrains à bâtir de 404 à 1033 m2*, bien exposés, totalement viabilisés et libres de constructeur.
Les terrains seront équipés de tous les branchements habituellement nécessaires (électricité, gaz, téléphone, eau potable et eaux usées) vous permettant de réaliser votre projet dans les meilleures conditions.
Commune du nord Pays d'Auge, Ouilly-le-Vicomte bénéficie d'une situation remarquable aux portes de la citée lexovienne, sur un axe de communication majeur, la RD 579, liaison entre Lisieux, la Côte Fleurie, l'Autoroute de Normandie, via Pont-l'Evêque.
Ouilly-le-Vicomte présente les caractéristiques même du paysage augeron traditionnel, largement influencées par le milieu physique, un paysage bocager, où la prairie, complantée de pommiers, est consacrée à l'élevage des bovins et des chevaux.
* (selon disponibilités)

Ensemble des travaux d'aménagement réalisés

24 terrains à bâtir OUILLY LE VICOMTE

Projet Lotissement Ouilly-Le-Vicomte

Projet Lotissement Le Pont d'Ouilly

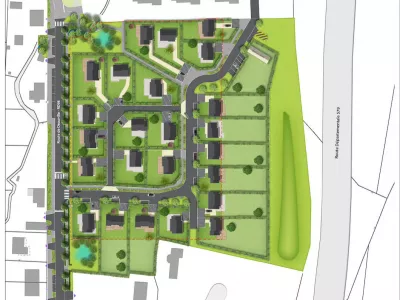
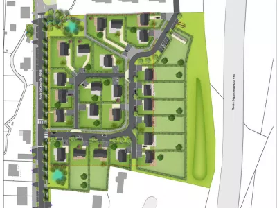
Plan d'aménagement

Vue aérienne

Vue aérienne zoomée

Ouilly le Vicomte vue du programme

Ouilly le Vicomte vue du programme

Démarrage chantier

Démarrage chantier

Travaux d'aménagement en cours

Travaux d'aménagement en cours

Travaux d'aménagement en cours

Travaux d'aménagement en cours

Travaux d'aménagement en cours

Pose réseaux souples

Pose réseaux souples

Pose réseaux souples

Pose réseaux souples

Achèvement des travaux de 1ère phase

Achèvement des travaux de 1ère phase

Achèvement des travaux de 1ère phase

Achèvement des travaux de 1ère phase

Construction maisons en cours

Construction maisons en cours

Achèvement des travaux de finition et livraison

Achèvement des travaux de finition et livraison

Achèvement des travaux de finition et livraison

Achèvement des travaux de finition et livraison

Achèvement des travaux de finition et livraison

Achèvement des travaux de finition et livraison

Achèvement des travaux de finition et livraison

Achèvement des travaux de finition et livraison

Pose des enrobés

Pose des enrobés

Pose des enrobés

Travaux d'aménagement terminés

Travaux d'aménagement terminés

Travaux d'aménagement terminés

Travaux d'aménagement terminés

Travaux d'aménagement terminés

Travaux d'aménagement terminés

Travaux d'aménagement terminés

Travaux d'aménagement terminés














































